Ons kantoor is lid van Baerz & Co Luxury Homes; een internationaal platform dat exclusieve woningmakelaars met elkaar verbindt. Neem contact op met ons secretariaat voor meer informatie over het landelijke aanbod, waarvan u hieronder een selectie kunt bekijken.

AMSTELVEEN
Amstelzijde 40 - 1184 VA
Netherlands

Sander Bovenkerk profile image
Sander Bovenkerk
Real estate agent
€1,500,000 k.k.
Living Area
160m2
Plot Size
175m2
Bedrooms
4

Description

Amstelzijde 40, 1184 VA Amstelveen

At the Amstelzijde, directly at the waterfront, lies this characterful residence dating back to 1940. With a living area of approximately 160 m², spread over three floors plus a basement, the house offers a unique combination of historic charm and modern comfort. Large windows, a spacious garden with a private dock, and the possibility to adjust the layout to your own preferences make this a remarkable home in an exceptional location.

Layout

Through the entrance on the low-traffic street side, you enter the hallway with wardrobe space and separate guest toilet with washbasin. From here, you access the room at the front of the house, which enjoys abundant natural light thanks to tall windows. This versatile space is ideal as an office or practice room and also benefits from its own (second) entrance.

The generous living room spans the full width of the house and is distinguished by an elegant herringbone wooden floor and large windows with French doors to the garden. This provides the living room with abundant daylight and a stunning view over the rear garden and the Amstel.

Adjacent is the semi-open kitchen, executed in warm wood tones with a dark countertop, underfloor heating, and fitted with built-in appliances including a 5-burner gas stove, Quooker, combi-oven, dishwasher, and fridge-freezer. The kitchen also provides direct access to the garden.

The rear garden is beautifully landscaped with lush greenery and features a private jetty on the Amstel. Here you can enjoy the peaceful setting and the unobstructed water views. The garden is also accessible via a private side entrance next to the house.

Beneath the house lies a practical basement of approx. 11 m² with a ceiling height of nearly two meters. Perfect as a wine cellar, pantry, or additional storage, the built-in shelves and cupboards make it highly functional.

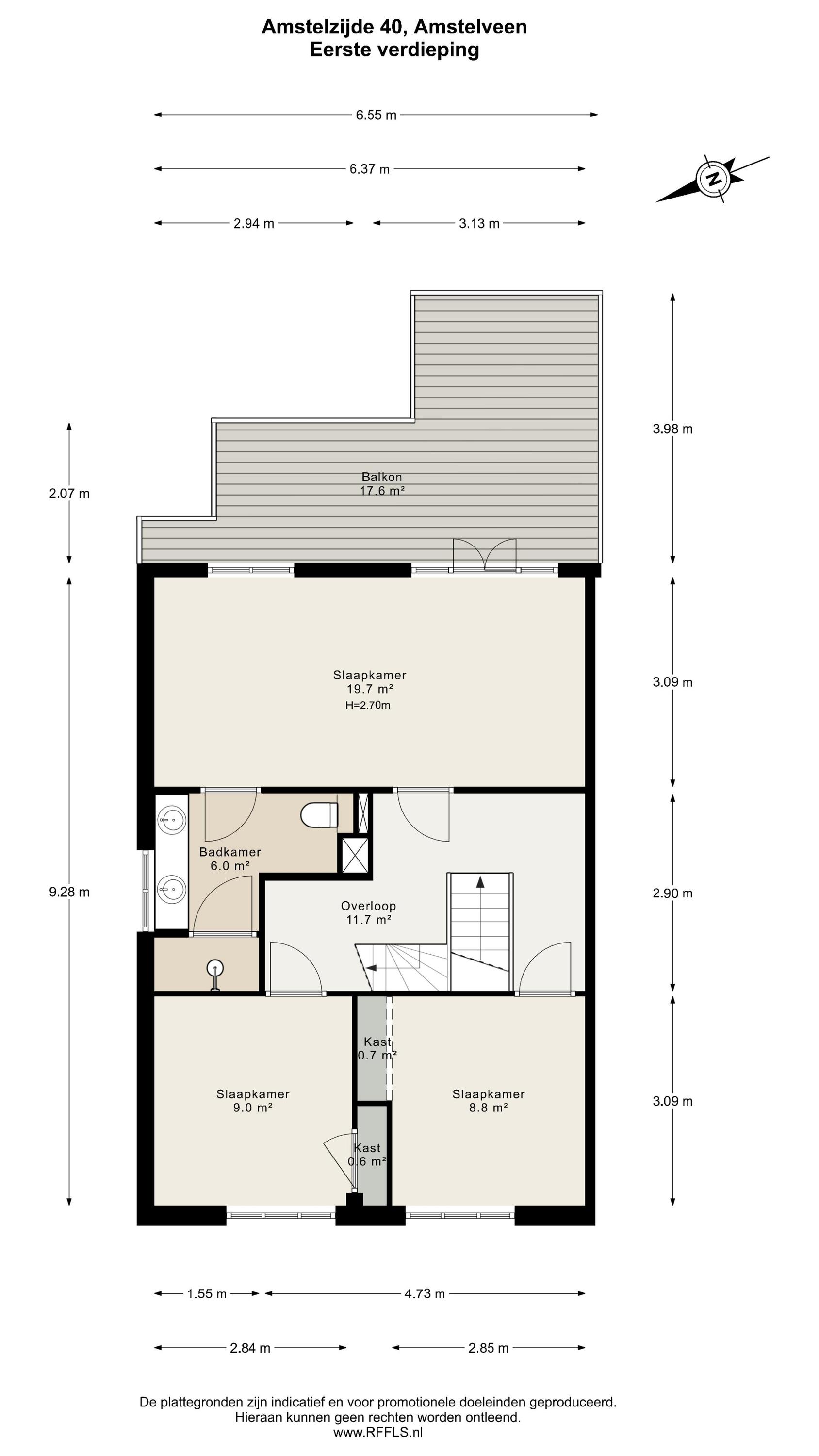
First Floor

The spacious landing gives access to three bedrooms and the bathroom. The master bedroom is located at the rear and features double French doors opening onto a large balcony of approx. 17 m² with breathtaking views over the Amstel. The room is generously sized and finished with a beautiful wooden floor.

At the front are two well-proportioned bedrooms, one currently used as a walk-in wardrobe. Thanks to their built-in storage and practical layout, these rooms can easily serve as guest rooms or workspaces.

The bathroom is fitted with a walk-in shower, double washbasin with wooden cabinet, and a second toilet. A window provides natural daylight and ventilation. The bathroom also features underfloor heating.

Second Floor

The top floor is an open space with a high ridge (over 3 meters) and large skylights and dormers, creating a bright and airy atmosphere. A second modern bathroom is located here, equipped with a walk-in shower, washbasin cabinet, underfloor heating, and a third toilet. This level also benefits from air conditioning, offering year-round comfort. The authentic exposed beams combined with modern finishes give the space a distinctive character. If desired, this floor can easily be divided into two separate bedrooms.

Location and Surroundings

Living on the Amstelzijde means residing in one of the most charming and sought-after areas along the Amstel. This historic street, designated as a protected village view, is lined with characterful buildings and monuments, including the iconic weighbridge. With minimal traffic and one-way access, it offers a peaceful and exclusive setting.

Together with nearby Ouderkerk aan de Amstel, the Amstelzijde exudes a village-like charm, complete with inviting restaurants and cafés. Culinary highlights such as Restaurant Paardenburg, Ron Gastrobar, Restaurant SAAM, and Loetje are all within walking distance, along with essential amenities such as schools, shops, and sports facilities. For recreation, the Amstel, tennis clubs, riding schools, and extensive walking and cycling routes are right around the corner.

Here you enjoy the perfect balance of history, vibrancy, and nature—all just minutes away from the city.

Accessibility

The property is extremely well connected. By bike, you can reach Amsterdam’s city center in about 20 minutes via the picturesque Amstel route. Both the Zuidas business district and Schiphol Airport are within easy reach by car or public transport. A fast bus service to Amsterdam Arena, Schiphol, and Haarlem runs nearby, while the nearby A2, A9, and A10 motorways ensure excellent regional connections.

Parking in the street is well regulated. Residents can apply for a parking permit, which guarantees access to nearby parking spaces reserved exclusively for locals. This ensures convenience even with visitors frequenting the nearby restaurants.

Key Features
- Living area of approx. 160 m² (measured in accordance with NEN2580);
- Possibility to create up to five bedrooms;
- Unique location with unobstructed views of the Amstel;
- Built in 1940;
- Directly on the water with private dock (leased from the province);
- Central heating system renewed in 2025;
- Solar panels;
- Rear strip of garden along the Amstel owned by the province;
- Located on a low-traffic street;
- Residents-only parking permit system;
- Designated protected village view;
- Freehold land;
- Project notary: Hamans Blocks;
- “As is, where is” clause, non-occupancy clause, and age clause apply;
- Close to the village of Ouderkerk aan de Amstel;
- Transfer upon mutual agreement.

We have gathered this information with the greatest of possible care. However, we will not accept any liability for any incompleteness, inaccuracy or any other matter nor for the consequences of such. All measurements and surfaces stated are indicative. The purchaser has a duty to investigate any matter that may be of importance to him or her. The estate agent is the adviser to the seller with regard to this residence. We advise you to engage an expert (NVM registered) estate agent who will guide you through the purchasing process. Should you have any specific desires with regard to the residence, we advise you to make these known as soon as possible to your purchasing estate agent and have an independent investigation carried out into such matters. If you do not engage an expert, you will be deemed as considering yourself to be sufficiently expert to be- to oversee all matters that could be important. The NVM conditions apply.

Features

Transfer of ownership
Asking Price
€ 1.500.000 k.k.
Status
verkocht onder voorbehoud
Acceptance
in overleg
Construction
Kind of house
Herenhuis
Building type
vrijstaande woning
Construction period
1940
Energy rating
D
Roof type
zadeldak
Bedrooms
4
Bathrooms
2
Surface Areas And Volume
Living Area
160 m2
Other indoor space
11 m2
Exterior space attached to the buildinge
26 m2
Volume in cubic meters
630 m3
Plot Size
175 m2
Facilities
Aan water
Aan rustige weg
Vrij uitzicht
Aan vaarwater
Baerz & Co Property Brochure

Brochure

Videos

Floor Plans

Heeren Makelaars

Stadionweg 75
1077 SE Amsterdam

info@heerenmakelaars.nl
+31 204702255

www.heerenmakelaars.nl

Information / Viewing request

Sander Bovenkerk profile image
Sander Bovenkerk
Real estate agent