Ons kantoor is lid van Baerz & Co Luxury Homes; een internationaal platform dat exclusieve woningmakelaars met elkaar verbindt. Neem contact op met ons secretariaat voor meer informatie over het landelijke aanbod, waarvan u hieronder een selectie kunt bekijken.

Tussenverdieping for sale in AMSTERDAM

AMSTERDAM Nieuwe Spiegelstraat 26 A - 1017 DG The Netherlands


Steijn Schothorst profile image
Steijn Schothorst
Real Estate Agent
+316 53436695
info@heerenmakelaars.nl

Heeren Makelaars
Stadionweg 75
1077 SE Amsterdam
NETHERLANDS
+31 0204702255
www.heerenmakelaars.nl
info@heerenmakelaars.nl

Living area
87m2
Plot size
N/A
Bedrooms
2

Description

Nieuwe Spiegelstraat 26A, 1017 DG, AMSTERDAM

In an iconic building steeped in history, we proudly offer this move-in-ready apartment for sale! Located on the second floor, the residence boasts approximately 87 m² of living space and offers breathtaking panoramic views. This exceptionally energy-efficient apartment holds an A+ energy label. Moreover, the property is situated on freehold land, so no leasehold applies!

Situated on the corner of the Keizersgracht and Nieuwe Spiegelstraat, this apartment captures the essence of refined living in Amsterdam. Expansive windows allow abundant natural light to flood the carefully curated interior, enhancing both the elegance of the design and the charm of the historic surroundings. With the Rijksmuseum just a 3-minute walk away, residents are perfectly positioned to enjoy the very best the city has to offer in terms of culture and architecture, all while taking in stunning views of one of the most picturesque stretches of canal in Amsterdam.

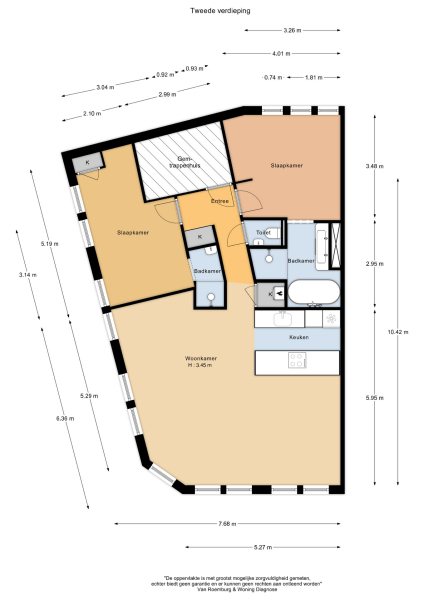
Upon entering the flat on the second floor, you immediately step into the spacious and bright living room. This stands out because of its impressive ceiling height and the large windows that extend over the full width of the front facade - on both the Nieuwe Spiegelstraat and Keizersgracht sides. The modern open kitchen is equipped with high-quality built-in appliances, including an induction hob with integrated extractor system, a fridge-freezer, combination oven, dishwasher and a Quooker. The stylish kitchen island with a travertine top forms the central element of the room.
The two generously sized bedrooms both have their own air-conditioning system. The master bedroom has a built-in wardrobe and has an en-suite bathroom with a spacious bathtub, a washbasin and a walk-in shower, finished with an antique brass shower head and zellige wall tiles. The second bedroom also has an en-suite bathroom, fitted with a walk-in shower and a vanity unit. Central to the house are another wardrobe and a separate toilet with hand basin, beautifully finished with Moroccan tiles.

Key features:
- Apartment right of approx. 87 m² (measured in accordance with NEN2580 guidelines)
- Fully renovated using high-quality materials
- Two well-proportioned bedrooms
- Project notary: Hartman LMH
- Bedrooms equipped with air conditioning units
- Two modern en-suite bathrooms
- Located in a prime location
- Energy label A+
- Situated on freehold land (no leasehold!)
- Buyer will receive a voucher worth € 10,000 to determine the (interior parts of) built-in cupboards to his own taste
- Project website: www.spiegelenkeizer.nl
- This project is co-listed with Max de Makelaer Amsterdam

Features

Transfer of ownership
price
€ 1.200.000 k.k.
Status
onder bod
Acceptance
in overleg
Construction
Kind of house
Tussenverdieping
Building type
appartement
Construction period
1692
Energy rating
A_P
Roof type
plat dak
Bedrooms
2
Bathrooms
0
Surface Areas And Volume
Living area
87 m2
Other indoor space
0 m2
Volume in cubic meters
301 m3
facilities
Mechanische ventilatie
Airconditioning
Aan water
In centrum
Baerz & Co Property Brochure

Brochure

Information / Viewing request

Videos

Photos

Floor Plans