Ons kantoor is lid van Baerz & Co Luxury Homes; een internationaal platform dat exclusieve woningmakelaars met elkaar verbindt. Neem contact op met ons secretariaat voor meer informatie over het landelijke aanbod, waarvan u hieronder een selectie kunt bekijken.

Villa for sale in BERGSCHENHOEK

BERGSCHENHOEK Douwes Dekkerlaan 80 - 2662 AL The Netherlands


Dominique Blom profile image
Dominique Blom
Real Estate Agent
+31 107850833
dominique@dbmakelaars.nl

DB Makelaars
Dorpsstraat 79
2661 CE Bergschenhoek
NETHERLANDS
+31 107850833
www.dbmakelaars.nl
info@dbmakelaars.nl

Living area
182m2
Plot size
524m2
Bedrooms
4

Description

Spacious living in a wonderful location?
This generous semi-detached house on the popular Douwes Dekkerlaan offers it all: a large living room, beautiful garden, garage, private parking, and a quiet setting in a child-friendly neighborhood.

Just a stone’s throw away lies the lively center of Bergschenhoek with a wide variety of shops and Park De Leeuwenkuil. In the immediate surroundings, you will find several primary schools, daycare centers, and sports and recreational facilities. Major cities (Rotterdam, Delft, Zoetermeer, and The Hague) are easily accessible by both public transport (bus and RandstadRail) and by car via the main roads (A12, A13, N209, and N472).

In short, this ideal family home, located in a child-friendly area, is definitely worth a viewing!

Layout

Ground floor:
Entrance/hall with meter cupboard, toilet, access to the garage, staircase to the first floor, and access to the living room and study.

At the rear of the house is the spacious and bright living room with a charming bay window and a door to the garden. The bay window provides extra light and a beautiful view of the greenery.

The kitchen is located at the front and equipped with an electric shutter, microwave, induction hob, oven, and fridge-freezer combination.

The study features carpet flooring and an electric shutter, offering a quiet spot for working from home or hobbies.

Garage:
The garage is fitted with an electrically operated door, built-in cupboards, and a connection for a washing machine. From the garage, there is access to a practical utility room with a sink.

Garden:
The beautifully landscaped rear garden faces southeast and offers a wonderful variety of flowers and plants. Several terraces allow you to find a sunny or shady spot at any time of the day. A special detail is the cozy corner for the evening sun, atmospherically decorated with a stained-glass feature. At the back of the garden, there is a wooden shed for storing garden tools and bicycles.

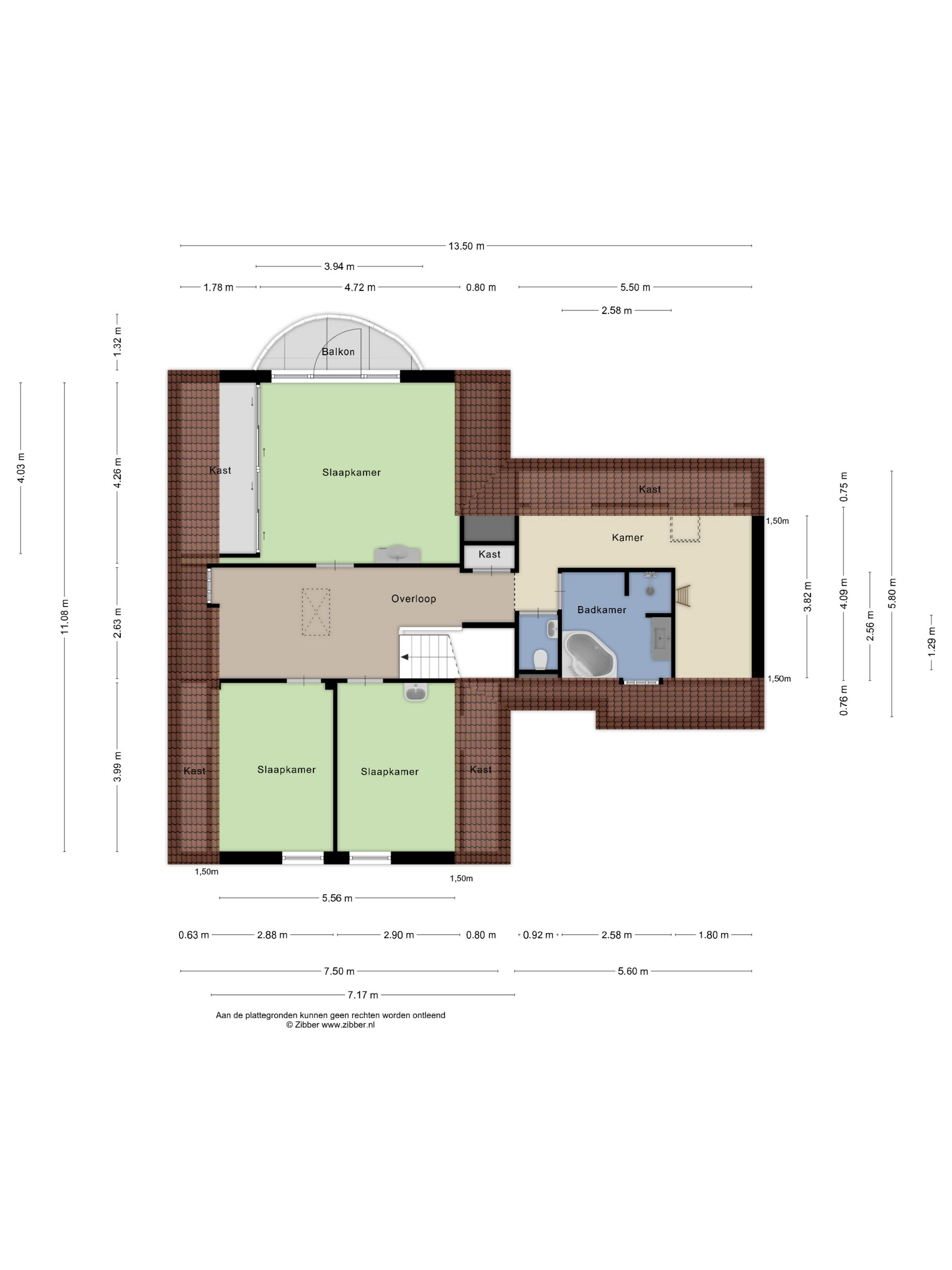
First floor:
The spacious landing provides access to all rooms.
Master bedroom (rear) with built-in wardrobes, washbasin, and access to the balcony overlooking the garden.

Bedroom 2 and Bedroom 3 (front), with Bedroom 3 also featuring a washbasin.

The large bathroom is fitted with a bathtub, shower, towel radiator, and washbasin with cabinet. On this floor, there is also a separate second toilet.

Behind the bathroom, there is an open multifunctional space, ideal as a hobby room, play area, or extra workspace.

Attic:
From the landing, a loft ladder leads to the attic, where the heat recovery unit (WTW) and extra storage space can be found. Additionally, there is plenty of practical storage behind the knee walls throughout the house.

Particulars:
- Living area approx. 182 m²
- Child-friendly neighborhood with a quiet setting and plenty of play opportunities
- Beautifully landscaped sunny garden
- Private driveway and spacious garage
- Transfer by mutual agreement, in accordance with the List of Items

The purchase agreement will include the following extra clause:
- The non-occupancy clause applies to this property.

We warmly invite you to come and see this lovely house for yourself.

Additional Information

All information provided must be regarded as an invitation to make an offer or to enter negotiations. The texts and impressions are intended to give a good impression of the property. The utmost care has been taken with the content; nevertheless, all information is expressly subject to change. No rights can be derived from this property information.

Purchase agreement legally binding only after signature:
An oral agreement between the private seller and the private buyer is not legally binding. In other words: there is no sale. A purchase is only legally valid once both the private seller and the private buyer have signed the purchase agreement. This follows from Article 7:2 of the Dutch Civil Code. A confirmation of the oral agreement by e-mail or a draft purchase agreement sent is not considered a "signed purchase agreement."

Measurement Instruction Disclaimer:
The property has been measured in accordance with the industry-wide Measurement Instruction (BBMI). The Measurement Instruction is intended to apply a more uniform method of measuring to provide an indication of the usable surface area. The Measurement Instruction does not completely exclude differences in measurement results, for example, due to interpretation differences, rounding, or limitations during the measurement process.

We are the seller’s agent. We advise you to bring your own real estate agent to represent your interests when purchasing your future home!

Features

Transfer of ownership
price
€ 989.500 k.k.
Status
verkocht onder voorbehoud
Acceptance
in overleg
Construction
Kind of house
Eengezinswoning
Building type
twee onder een kapwoning
Construction period
2002
Energy rating
A
Roof type
zadeldak
Bedrooms
4
Bathrooms
1
Surface Areas And Volume
Living area
182 m2
Other indoor space
38 m2
Exterior space attached to the building
5 m2
External storage space
5 m2
Volume in cubic meters
778 m3
Plot size
524 m2
facilities
Mechanische ventilatie
Rolluiken
Glasvezel kabel
Aan water
In woonwijk
Baerz & Co Property Brochure

Brochure

Information / Viewing request

Videos

Photos

Floor Plans