Baerz & Co is een landelijk samenwerkingsverband van zorgvuldig geselecteerde boutique luxury makelaars. Samen vormen wij één netwerk, met één gedeeld aanbod. De woningen die u op onze website ziet, zijn afkomstig van alle aangesloten kantoren binnen Baerz & Co. Daardoor is niet ieder object rechtstreeks door ons kantoor in verkoop, maar door een gespecialiseerde collega binnen ons netwerk. Heeft u een woning gevonden die u aanspreekt en wilt u meer informatie? Dan brengen wij u graag persoonlijk in contact met de betreffende verkoopmakelaar, zodat u direct en zorgvuldig wordt begeleid.

DENEKAMP
Lubberdinksweg 15 - 7591 PB
Netherlands

€1,850,000
Living Area
333m2
Plot Size
11790m2
Bedrooms
6

Description

Erve ’t Jochem

Rural living at its finest in the countryside of Denekamp. This characteristic, monumental and fully renovated farmhouse with several outbuildings is beautifully tucked away in the lush landscape of northeast Twente. The authentic appearance of the Saxon-style farmstead—with its robust half-timbered façades, refined window mullions, nostalgic outbuildings, majestic oak trees and driveways and terraces paved with traditional baked bricks—creates an exceptionally charming and rustic atmosphere.

The estate offers ample space to enjoy outdoor living. The country-style landscaped garden features a spacious freestanding garden room, making it the perfect setting for long, cosy evenings in complete peace and privacy. There is also plenty of room for keeping hobby animals. Here, you experience the ultimate sense of freedom, surrounded by nature, while still enjoying all modern comforts.

The Farmhouse
This farmhouse is a rare gem in Twente and, according to historical accounts, dates back to 1636. It is built in the traditional Saxon style, featuring original half-timbered façades resting on a Bentheimer sandstone foundation. A major restoration took place in 1972 and in 2019 the property was fully modernised and made energy-efficient, significantly enhancing living comfort. Authentic elements—including the centuries-old timber frames—have been carefully preserved and integrated. Thanks to these improvements, this centuries-old farmhouse now boasts an excellent Energy Label A. With a generous living area of 333 m² and a volume of 1,236 m³, the home offers abundant space for a large family.

The ground floor includes a spacious modern kitchen, a living room divided into a dining and sitting area by a gas fireplace, a children’s play corner, a fitness room, a utility room, several storage rooms and—last but not least—a beautiful bedroom with a luxurious ensuite bathroom. At the front of the farmhouse, you will find the traditional “onderschoer”, a small covered and intimate terrace.
The first floor offers five bedrooms, a storage and technical room, a walk-in closet, a separate toilet and a modern bathroom.

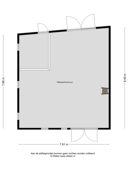
Outbuildings
Several outbuildings surround the farmhouse:
• Garden room / orangery of approx. 5.6 x 5.6 m with glass sliding panels
• Half-timbered barn of approx. 5.5 x 4 m, ideal as storage or hobby space
• Half-timbered barn of approx. 7.5 x 8.5 m, suitable for storing garden machinery and tools
• Carport for two cars
• Chicken coop

The Grounds
From the Lubberdinksweg, a long driveway lined with monumental oak trees and a beech hedge leads to the private parking area. The spacious country garden, surrounded by green meadows and mature trees, offers privacy and a naturally relaxed atmosphere. The stylish farmhouse with nostalgic outbuildings and traditional layout of the grounds give the property a charming rural character. With multiple terraces—including the inviting garden room—this is an ideal place to enjoy outdoor living in every season.

Location
Denekamp is a charming village in Twente, located in the eastern part of the Netherlands near the German border. It is known for its rich history and close-knit community. With over 10,000 residents, Denekamp offers a variety of sports facilities, pleasant shops, and welcoming cafés and restaurants where hospitality is key.
The surrounding countryside provides endless opportunities for peace, nature and relaxation. The area is characterised by the typical Twente coulisse landscape with alternating meadows, forests and hedgerows. The nearby Dinkel river and winding paths offer beautiful walking and cycling routes. Nature lovers will feel right at home in the stunning surroundings of the Singraven Estate. Cities such as Oldenzaal, Hengelo, Enschede and even Germany are easily accessible.

Features

Transfer of ownership
Asking Price
€ 1.850.000
Status
beschikbaar
Acceptance
in overleg
Construction
Kind of house
Woonboerderij
Building type
vrijstaande woning
Energy rating
A
Roof type
zadeldak
Bedrooms
6
Bathrooms
2
Surface Areas And Volume
Living Area
333 m2
Other indoor space
0 m2
Exterior space attached to the buildinge
9 m2
External storage space
121 m2
Volume in cubic meters
1236 m3
Plot Size
11790 m2
Facilities
Mechanische ventilatie
Glasvezel kabel
Domotica
Aan rustige weg
Vrij uitzicht
Beschutte ligging
Buiten bebouwde kom
Landelijk gelegen
Baerz & Co Property Brochure

Brochure

Videos

Floor Plans

Van de Zande Makelaardij - Waalwijk

Grotestraat 344
5142 CD Waalwijk

joris@zande.nl
+31 416 333059

www.zande.nl

Information / Viewing request

Joris Elbersen profile image
Joris Elbersen
Real Estate Agent

Buying a Luxury Property in Denekamp

Denekamp offers a sophisticated blend of privacy, culture, and refined countryside living. Residents enjoy personalized service, strong community ties, and lifestyle opportunities that resonate with international buyers seeking both tranquility and connectivity.