Baerz & Co is een landelijk samenwerkingsverband van zorgvuldig geselecteerde boutique luxury makelaars. Samen vormen wij één netwerk, met één gedeeld aanbod. De woningen die u op onze website ziet, zijn afkomstig van alle aangesloten kantoren binnen Baerz & Co. Daardoor is niet ieder object rechtstreeks door ons kantoor in verkoop, maar door een gespecialiseerde collega binnen ons netwerk. Heeft u een woning gevonden die u aanspreekt en wilt u meer informatie? Dan brengen wij u graag persoonlijk in contact met de betreffende verkoopmakelaar, zodat u direct en zorgvuldig wordt begeleid.

HOOFDDORP
Statendam 4 - 2134 WX
Netherlands

Joris Elbersen profile image
Joris Elbersen
Real Estate Agent
€1,690,000 k.k.
Living Area
306m2
Plot Size
780m2
Bedrooms
6

Description

Comfortable and spacious detached villa set on a 780 m² plot, featuring an indoor double garage and a well-insulated garden shed built in the same architectural style as the house. Beautifully located on one of the islands in the residential area 'Den Hout' (a well-accessible neighbourhood on the outskirts of Hoofddorp), with excellent connections to Schiphol Airport, the Zuidas business district, and The Hague.
This unique villa was built in 2003 using traditional methods and high-quality materials. The villa features a front garden with a private driveway leading to the spacious double garage, while the rear offers a beautifully landscaped garden with multiple terraces and a partially covered veranda equipped with patio heating.
This family home, featuring six bedrooms and two bathrooms, offers an efficient layout with generously sized rooms throughout. On the ground floor, at the rear of the house, is a spacious kitchen spanning the full width of the house. Like the living room, it provides a warm and inviting space for the whole family to gather. Together with the many spacious rooms on the upper floors, this makes it an ideal family home.
Year built: 2003. Living area: 307m². Volume: 1,185m³. Plot: 780 m².

Layout:
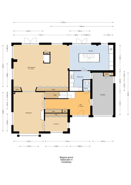
Ground floor: Entrance, large L-shaped hall with wardrobe and WC. From the hall, access is provided to the garage on the right and the living room on the left. At the front of the house are the dining room and a dedicated office space. Through the sliding doors of the dining room, you enter the rear of the house, where a cosy sitting room features a gas fireplace, a wide wall of built-in cupboards, and double doors opening onto the backyard. The spacious, modern SieMatic kitchen is open to the living room and features a large cooking island equipped with a built-in teppanyaki plate and an induction wok, along with additional features. One wall is fitted with a range of modern kitchen appliances. The utility room, accessible from both the garage and the kitchen, is equipped with a washing machine connection and a kitchen unit with a sink. The double French doors open onto a beautiful, spacious garden featuring a partially covered terrace, multiple seating areas, and a stylish garden shed.

First floor: Landing with access to four spacious and bright bedrooms and two modern bathrooms. The large master bedroom is located at the rear and provides access to the walk-in closet and the bathroom with bathtub, walk-in shower, second toilet, double sink, and sauna. The second bathroom has a shower, third toilet, and a sink. The second bedroom at the rear of the house provides access to the roof terrace via French doors.

Second floor: The multifunctional attic space, currently serving as a playroom, leads to one bedroom. Both rooms have a dormer window. The bedroom provides access to a storage room.
Family home with A-label energy rating: six bedrooms and two bathrooms

. Fitted with an alarm system
. Multiple primary schools (including international schools) and secondary schools (including
English-language schools) within walking distance.
· Possibility to set up a home office
. Charging station for electric cars installed
· Detached insulated garden shed, with running water and heating, suitable for working from
home, for example
· Central heating system: 2024
· Ideal location: on the outskirts of Hoofddorp and a short distance from Heemstede, Schiphol,
access roads to Amsterdam and Hoofddorp town centre

Features

Alarm system
Transfer of ownership
Asking Price
€ 1.690.000 k.k.
Status
beschikbaar
Acceptance
in overleg
Construction
Kind of house
Villa
Building type
vrijstaande woning
Construction period
2003
Energy rating
A
Roof type
zadeldak
Bedrooms
6
Bathrooms
2
Surface Areas And Volume
Living Area
306 m2
Other indoor space
18 m2
Exterior space attached to the buildinge
28 m2
External storage space
15 m2
Volume in cubic meters
1185 m3
Plot Size
780 m2
Facilities
Alarminstallatie
Rookkanaal
Sauna
Aan rustige weg
In woonwijk
Baerz & Co Property Brochure

Brochure

Videos

360 Panoramas

360°
360 Panorama - Statendam 4
360°
360 Panorama - Statendam 4
360°
360 Panorama - Statendam 4
360°
360 Panorama - Statendam 4
360°
360 Panorama - Statendam 4
360°
360 Panorama - Statendam 4
360°
360 Panorama - Statendam 4
360°
360 Panorama - Statendam 4
360°
360 Panorama - Statendam 4
360°
360 Panorama - Statendam 4
360°
360 Panorama - Statendam 4
360°
360 Panorama - Statendam 4
360°
360 Panorama - Statendam 4

Floor Plans

Van de Zande Makelaardij - Waalwijk

Grotestraat 344
5142 CD Waalwijk

joris@zande.nl
+31 416 333059

www.zande.nl

Information / Viewing request

Joris Elbersen profile image
Joris Elbersen
Real Estate Agent

Buying a Luxury Property in Hoofddorp

Hoofddorp offers a harmonious blend of cosmopolitan amenities, tranquil neighborhoods, and strong international connections, attracting residents who value both global perspective and refined daily living.