Unique fully renovated monumental canal house at prime location, with a beautiful sunny garden
As early as the 17th and 18th centuries, the Rapenburg was praised as one of the most beautiful and distinguished canals in the Netherlands. Even today, the Rapenburg, with its many monumental buildings and bridges, is generally considered the most beautiful canal in Leiden.
Rapenburg 45 is a 17th-century monumental canal house located in one of the most prominent locations in Leiden. The property offers a living area of ??no less than 345 m², in combination with a beautifully landscaped city garden with complete privacy. The property is located opposite the Rijksmuseum van Oudheden and a stone's throw from Leidens famous 'Hortus Botanicus'. Furthermore, everything that makes living in the city center of Leiden so pleasant is within walking and cycling distance; shops, entertainment venues, the theater, museums, etc.
The two neighboring properties are occupied by private individuals, which means the location is quiet and offers complete privacy.
Since purchasing this property in 2010, the current owners have completely renovated and made the property more sustainable to a very high standard; even a large part of all the windows have recently been replaced with the latest vacuum glass, which means that this Rijksmonument meets the highest level of quality and comfort. The interior of the house still contains many beautiful style features such as beautiful beamed ceilings, a selection of Delft Blue tiles in the hallway and a unique monumental staircase to the first floor.
Fun fact: this monument has a series of interesting former residents, not least Princesses Beatrix and Margriet, during their studies in Leiden.
Good to know: the sellers own parking places in an underground garage located at some 1.400m. from the house which they will consider to sell.
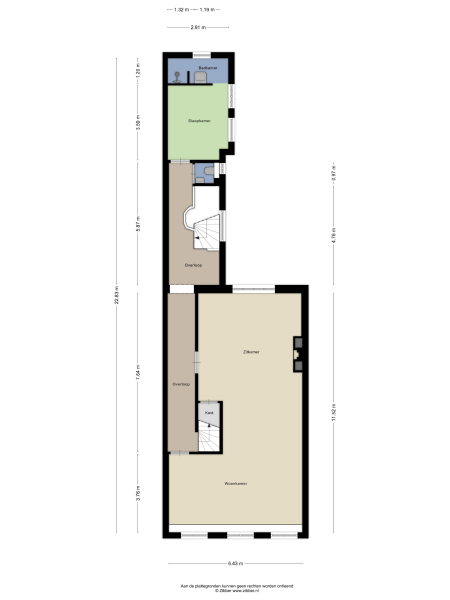
LAYOUT
Ground floor:
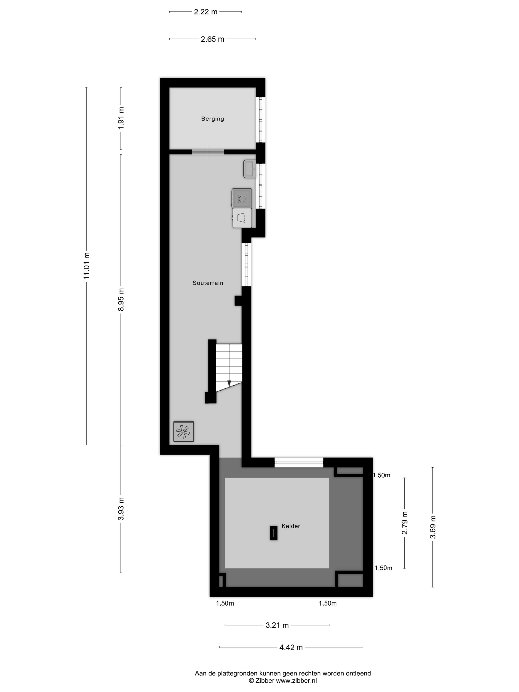
Spacious and bright entrance. Door to the kitchen. This is a beautiful and very atmospheric space with 2 high windows on the canal side and French doors to the back garden. The luxurious Bulthaup kitchen is of course equipped with all the usual appliances. The wide gas fireplace on the garden side adds extra atmosphere to the dining and sitting area of ??this space. The long hallway with Delft Blue tiles on both sides leads to a small hall with access to the garden and a staircase to the basement. This is currently used as a laundry room. On the street side, there is a vaulted cellar for storage on this level. Back to the hallway, here you will find another guest toilet and at the end of the hallway a multifunctional room.
First floor:
A monumental staircase leads to the first floor. In the back house there is a separate toilet and a bedroom with modern bathroom en suite. At the front you will find the very spacious and bright living room with a sitting room around the fireplace on the garden side and at the front (3 windows wide) a nice bright living room with a beautiful view of the canal and the city.
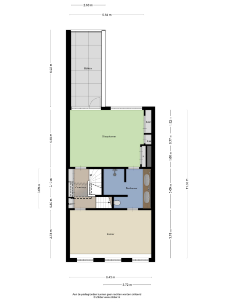
Second floor:
Landing with wardrobe. At the rear the very spacious master bedroom with private roof terrace, wardrobe and bathroom en suite. This bathroom is also connected to the spacious room at the front. This is currently used as a study but is also very suitable as a bedroom.
Third floor:
Landing, bathroom with shower, toilet and bedroom. Very spacious and attractive bedroom at the front with dormer window and built-in closet. Here is also a hatch with loft ladder for access to the large attic space with, among other things, the setup for the central heating. Furthermore, at the rear is one smaller bedroom with dormer window.
Garden:
The garden is beautifully landscaped and faces west. There are several seating areas for both sun and shade and it is always striking how quiet it is at the rear of such a building. Here you can relax wonderfully or dine with friends in the garden.
All in all a very special and unique object. Definitely worth your viewing.