Ons kantoor is lid van Baerz & Co Luxury Homes; een internationaal platform dat exclusieve woningmakelaars met elkaar verbindt. Neem contact op met ons secretariaat voor meer informatie over het landelijke aanbod, waarvan u hieronder een selectie kunt bekijken.

Single Family House for sale in Rhenen

Rhenen Herenstraat 84 - 3911 JG The Netherlands


Wistik Zonnenberg profile image
Wistik Zonnenberg
Real Estate Agent
+31 318 559600
info@zonnenbergmakelaardij.nl

Zonnenberg Makelaardij
Kerkewijk 108
3904 JG Veenendaal
NETHERLANDS
+31 318 559600
www.zonnenbergmakelaardij.nl
info@zonnenbergmakelaardij.nl

Living area
209m2
Plot size
1295m2
Bedrooms
4

Description

Are you looking for a home with character, space, and potential?

Then don’t miss this unique opportunity at Herenstraat 84 in Rhenen.
This charming and authentic property offers you the chance to create your dream home in a prime location. The house is situated on the edge of Rhenen’s lively town center, within walking distance of the Utrechtse Heuvelrug forests and the beautiful nature area surrounding the Rhine River.

With a living area of no less than 208 m², this home offers plenty of possibilities with an open living room, separate kitchen, practical utility room, spacious office, four bedrooms, and a convenient cellar. If desired, one or two additional bedrooms can easily be created.
The large plot of 1,295 m² provides all the outdoor space you could wish for. In addition to a lovely garden, there is room to add an outbuilding, veranda, or garden room if desired.

In short, if you are looking for a characterful and stylish home with ample living space and a large plot, this is your chance to make your dream home a reality in a top location. Here, you’ll experience both atmosphere and space in a charming setting.

Location:
Situated in the peaceful and green town of Rhenen, this home enjoys an attractive location with all amenities nearby.
Rhenen’s cozy town center, with its variety of shops, restaurants, and supermarkets, is just minutes away. Facilities such as schools, sports clubs, and public transport are close at hand, offering excellent living comfort.
Rhenen is also centrally located and easily accessible by car and public transport via Rhenen train station, making cities such as Utrecht, Veenendaal, and Wageningen easy to reach. This neighborhood offers the ideal balance between tranquility and convenience, with everything you need close by.

Entrance:
The characterful entrance immediately catches the eye.
A path leads you to the front door, located on the street side. Once inside, the spacious hallway guides you through the heart of the home, giving access to all ground-floor rooms, including the office, utility room, kitchen, and living room.

Living Room:
The bright, open living room is filled with natural light thanks to large windows at both the front and rear.
This inviting space offers room for a comfortable sitting area and a generous dining area. Characteristic features such as a charming mantelpiece, decorative ceiling ornaments, and a warm wooden floor give the room a cozy and elegant look. With some modern updates, this room can easily be transformed to match your personal style.

Kitchen:
Next to the hallway is the separate kitchen, equipped with an L-shaped countertop, built-in oven, and gas stove.
The space lends itself perfectly to a full renovation, offering you the opportunity to design a modern kitchen entirely to your taste. From the kitchen, you have direct access to both the office and the spacious backyard. The office could also serve as a dining room if preferred.

Cellar:
Beneath the house is a cellar, accessible from the hallway — ideal for extra storage or keeping food and drinks cool.
Part of the cellar can also be accessed from outside, adding convenience and practicality to daily life.

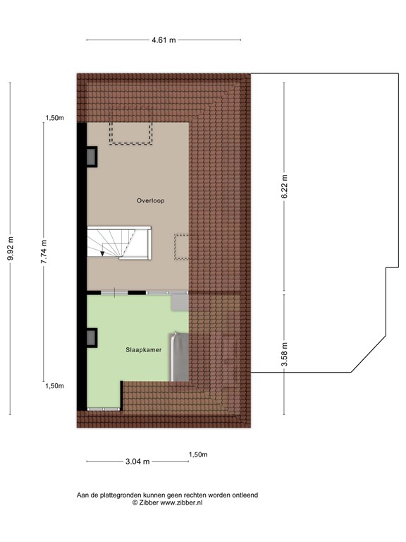
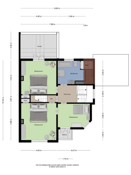
First Floor:
The staircase from the hallway leads to the first floor, where you’ll find three spacious bedrooms and a bathroom — all with plenty of daylight and potential for modernization and redesign.

Bedrooms:
The bedrooms are large enough for a bed and desk and receive ample natural light.
One bedroom has French doors opening onto a roof terrace, while another features a balcony overlooking the street.
These versatile rooms are ideal as guest rooms, home offices, or additional storage. After some light renovation, they’ll be ready for use.

Bathroom:
The bathroom is fully tiled and generously sized, featuring a shower cabin, bathtub, sink with mirror, towel radiator, and toilet.
Although it could benefit from modernization, it’s a comfortable space where you can unwind after a long day.

Second Floor:
A fixed staircase leads to the second floor, with a spacious landing and a cozy bedroom.
Despite the sloping roofline, there is ample headroom, and the visible wooden beams add a warm and rustic touch.
An additional (fifth) bedroom could easily be created on this floor if desired.

Outdoor Space:
At the rear of the house lies a large, south-facing garden, offering peace and privacy.
The landscaped terrace provides space for a generous lounge set or outdoor dining area — perfect for relaxing or entertaining on warm evenings. The lush greenery surrounding the garden ensures complete privacy and creates your own tranquil oasis to enjoy throughout the year.

General Information
- Type of property: Semi-detached house
- Year of construction: 1902
- Number of rooms: 6
- Number of bedrooms: 4
- Number of bathrooms: 1
- Parking: Public
- Features: Dormer / storage
- Garden orientation: South
- Technical Information
- Hot water supply: HRC30 central heating boiler (Nefit)
- Heating system: HRC30 central heating boiler (Nefit)
- Fireplace
- Features: Outdoor sunshades / 2x cellar
- Double glazing: Partially
- Fiber optic & TV cable available
- Window frames: Wood

Interested in a Viewing?

For more information about this property, please contact our Rhenen office.

You are very welcome! The best impression of this home can, of course, only be experienced during a viewing.
We always plan our viewings in consultation with both seller and buyer and take plenty of time, so you can explore the property at your own pace.

Note: The information in this brochure has been compiled with the greatest possible care. However, no rights can be derived from any inaccuracies or omissions in the data or drawings provided.

Features

Transfer of ownership
price
€ 899.950 k.k.
Status
Available
Acceptance
In Concert
Reference
08084
Construction
Kind of house
Single Family House
Building type
Semi Detached House One Roof
Construction period
1902
Energy rating
F
Roof type
composite
Bedrooms
4
Bathrooms
1
Surface Areas And Volume
Living area
209 m2
Other indoor space
24 m2
Exterior space attached to the building
37 m2
External storage space
6 m2
Volume in cubic meters
825 m3
Plot size
1295 m2
facilities
Balcony
Cable Tv
Fireplace
Fluetube
Not Furnished
Garden
Internetconnection
Phoneline
Skylight
Storageroom
Not Upholstered
Baerz & Co Property Brochure

Brochure

Information / Viewing request

Videos

Photos

Floor Plans