Ons kantoor is lid van Baerz & Co Luxury Homes; een internationaal platform dat exclusieve woningmakelaars met elkaar verbindt. Neem contact op met ons secretariaat voor meer informatie over het landelijke aanbod, waarvan u hieronder een selectie kunt bekijken.

ZALTBOMMEL
Tolstraat 21 - 5301 AX
Netherlands

Joris Elbersen profile image
Joris Elbersen
Real Estate Agent
€1,000,000 k.k.
Living Area
299m2
Plot Size
204m2
Bedrooms
3

Description

In a peaceful setting within the historic ramparts, you’ll find this carefully maintained live–work residence — a unique opportunity for any creative professional seeking generous space for living, an atelier, studio or gallery. A truly privileged location close to all amenities and the River Waal, which can be admired from the 45 m² roof terrace. The property also offers potential for subdivision into two dwellings (subject to permits).

Tolstraat 19:
Entrance hall, luxury kitchen and dining room with high beamed ceiling, utility room and WC on the ground floor.
Sunny living room with mezzanine and adjoining roof terrace, bedroom, and a luxury bathroom on the first floor.
Attic room and study beneath the restored roof structure on the second floor.

Tolstraat 21:
Second entrance, living room and a large studio on the ground floor.
Bedroom, bathroom, separate WC and kitchen adjacent to the roof terrace on the first floor.
Storage attic beneath the insulated roof on the second floor.

Volume: approx. 1,265 m³
Living area: 299 m²
Plot size: 204 m²
Construction period: 17th century

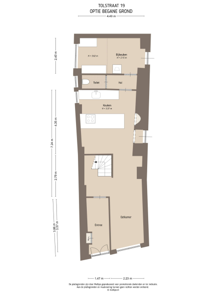
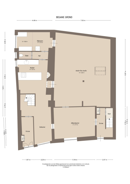
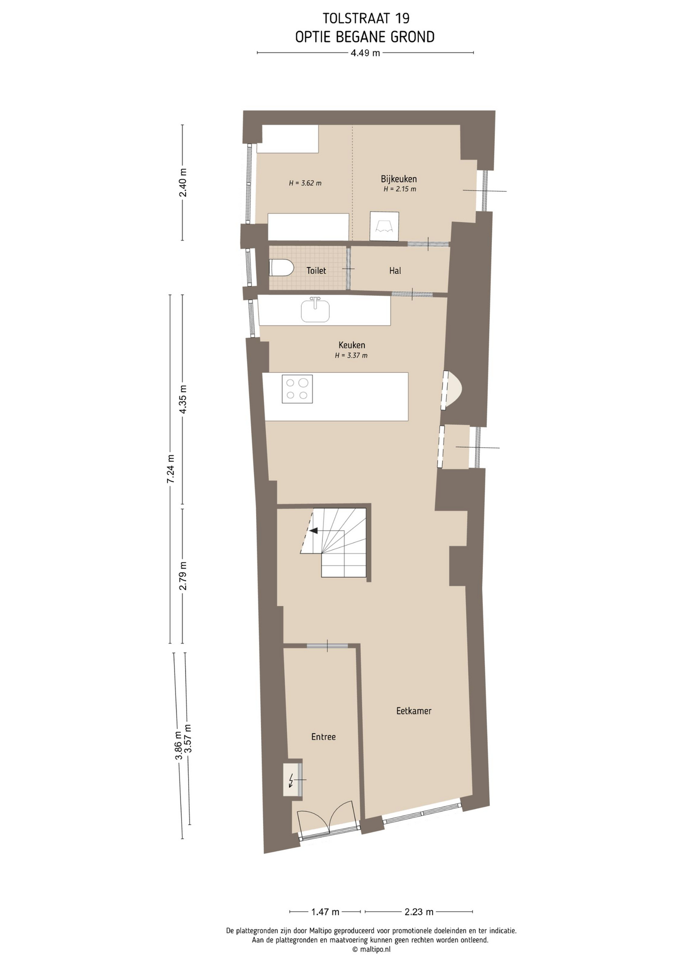
Tolstraat 19 – Ground floor
A spacious entrance leads into the kitchen and dining room. The impressive 17th-century beamed ceiling immediately sets the tone, while a high south-facing window floods the space with natural light. The kitchen (2020) features a large island and various built-in appliances and serves as the heart of this true live–work property. Adjoining the kitchen is a multifunctional studio of approx. 65 m², currently used as a photography and music studio.

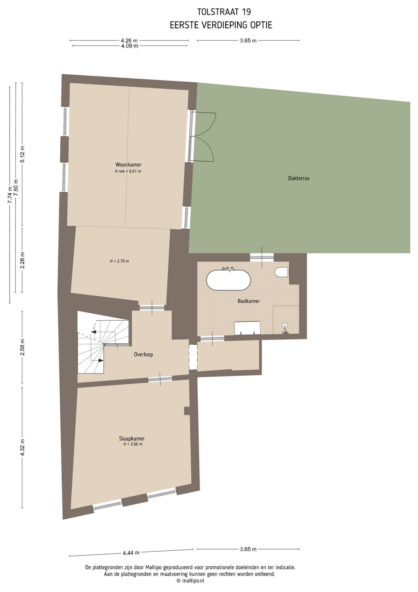
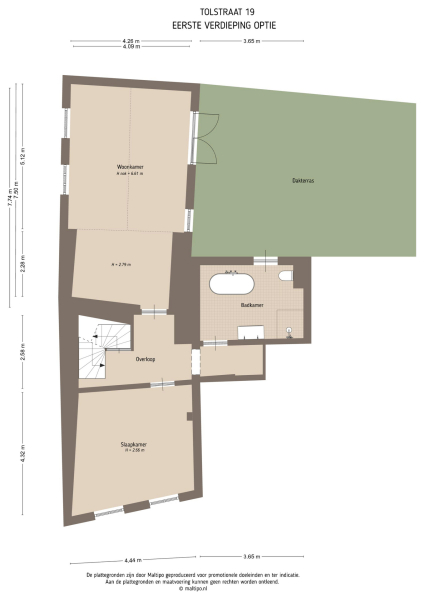
Tolstraat 19 – First floor
A wide contemporary staircase leads to the landing. At the rear is the slightly elevated living room with windows facing west, offering a view towards the marina. On the east side, double doors open onto the roof terrace. During the recent restoration, the ridge of the rear section was left fully exposed, creating a spectacular ceiling height of over 6.5 metres.
This level also offers a generous, sunny bedroom and a luxury bathroom (2020) with direct access to the roof terrace. The bathroom includes a freestanding bath, walk-in shower, vanity unit and toilet.
The rooms belonging to Tolstraat 21 are also accessible from this landing.

Tolstraat 19 – Second floor
An ancient spiral staircase leads to the attic room, where the historic character of the house is unmistakable. During the 2021 roof restoration, all timber work was repaired, the roof re-boarded and insulated on the exterior.
This attic room is ideal as a guest bedroom. Through a characteristic archway, a mezzanine workspace with views of the living room is reached — currently used as a reading room, beautifully lit by a roof window catching the morning sun.

Tolstraat 21 – Ground floor
A separate entrance with traditional estriken floor tiles leads into the living room. This space can be easily combined with the studio, creating a multifunctional area of approx. 86 m². Thanks to the excellent acoustics, the studio is perfectly suited for yoga or Pilates sessions, training, an atelier or gallery.
The photography shows how this area can also serve as a spacious living room with open-plan kitchen. For professional use or subdivision, the second entrance is ideal.

Tolstraat 21 – First floor
A straight staircase leads to the landing, giving access to a separate WC, compact kitchen, bedroom and bathroom. The kitchen occupies a favourable position directly beside the roof terrace. The bathroom includes a bathtub, walk-in shower and washbasin.
A Velux roof window brings in abundant natural light.

Tolstraat 21 – Second floor
This level offers a large storage attic beneath the insulated roof (renewed in the late 1990s), with the HR boiler and roof windows providing daylight. A loft ladder on the landing leads up to this floor.

Additional information
This landmark townhouse has been carefully adapted over the years to meet contemporary standards.
The studio on the ground floor features underfloor heating and full acoustic insulation, due to its former use as a professional sound studio. The property has been significantly upgraded in terms of energy efficiency: internal insulation has been added to most walls, the ground-floor windows are double glazed, and the roof has been fitted with insulated sandwich panels and PIR insulation. The flat roof is insulated as well. Heating is provided by a gas-fired central heating system with a Nefit HR boiler from 2020. Nineteen solar panels have been installed on the main roof.
The sunny, private roof terrace (45 m²) was designed under the supervision of a landscape architect. It offers a wonderfully relaxed atmosphere, complete with olive trees, a pergola and carefully chosen planting. Thanks to its sheltered position, there is always a comfortable spot to enjoy the sun or start the day with a cappuccino while gazing towards the river.
Because of the second entrance, the current layout and the full range of facilities on both addresses, the property offers excellent potential for subdivision into separate living units (subject to the necessary permits). The photo presentation includes both floor plans and renders illustrating how such a subdivision could look.
The house is quietly situated just off the lively town centre, in a one-way side street. The fortified town of Zaltbommel offers a comprehensive range of amenities, including several schools and sports clubs. Within walking distance you will find a varied selection of shops, boutiques, a theatre and numerous cafés and restaurants. The Albert Heijn supermarket is only 500 metres away.
The railway station is also within walking distance, as are several primary schools. The Waalkade is less than 50 metres from the house and forms an ideal starting point for endless walks or bike rides through the beautiful river landscape. There is ample on-street parking for visitors in the immediate vicinity.

If you are looking for a generous, truly versatile live–work property with the possibility of subdivision, we warmly invite you to schedule a viewing.

Features

Solar panels
Alarm system
Transfer of ownership
Asking Price
€ 1.000.000 k.k.
Status
beschikbaar
Acceptance
in overleg
Construction
Kind of house
Herenhuis
Building type
tussenwoning
Construction period
1750
Energy rating
C
Roof type
samengesteld dak
Bedrooms
3
Bathrooms
2
Surface Areas And Volume
Living Area
299 m2
Other indoor space
15 m2
Exterior space attached to the buildinge
45 m2
Volume in cubic meters
1265 m3
Plot Size
204 m2
Facilities
Alarminstallatie
Dakraam
Glasvezel kabel
Zonnepanelen
Natuurlijke ventilatie
Aan rustige weg
In centrum
Baerz & Co Property Brochure

Brochure

Videos

360 Panoramas

360°
360 Panorama - Tolstraat 21
360°
360 Panorama - Tolstraat 21
360°
360 Panorama - Tolstraat 21
360°
360 Panorama - Tolstraat 21

Floor Plans

Van de Zande Makelaardij - Waalwijk

Grotestraat 344
5142 CD Waalwijk

joris@zande.nl
+31 416 333059

www.zande.nl

Information / Viewing request

Joris Elbersen profile image
Joris Elbersen
Real Estate Agent

Buying a Luxury Property in Zaltbommel

Zaltbommel provides an exclusive community, enriched by heritage, natural beauty, and refined amenities. Residents benefit from a timeless lifestyle, discreet services, and a secure yet inviting atmosphere, all positioned to attract a global clientele seeking authenticity and tranquility.