Ons kantoor is lid van Baerz & Co Luxury Homes; een internationaal platform dat exclusieve woningmakelaars met elkaar verbindt. Neem contact op met ons secretariaat voor meer informatie over het landelijke aanbod, waarvan u hieronder een selectie kunt bekijken.

AMSTERDAM
Singel 29 - 1012 VC
Nederland

Sander Bovenkerk profile image
Sander Bovenkerk
Real estate agent
€4.100.000 k.k.
Woonoppervlakte
342m2
Perceeloppervlakte
172m2
Slaapkamers
7

Omschrijving

Singel 29, 1012 VC Amsterdam

Aan de statige Singel, één van de oudste en meest karakteristieke grachten van Amsterdam, bevindt zich dit uitzonderlijke grachtenpand: Singel 29. Een woning waar historie en hedendaags comfort elkaar moeiteloos vinden. Achter de monumentale gevel ontvouwt zich een volledig pand van circa 342 m² woonoppervlakte, verdeeld over vijf woonlagen, met daarnaast een vrijstaand bijgebouw van circa 41 m² in de beschutte achtertuin.

Het pand is met oog voor detail en respect voor de oorspronkelijke architectuur vernieuwd. Originele balken, hoge plafonds en grote raampartijen verwijzen naar details van het verleden, terwijl maatwerk, natuurlijke materialen en een serene afwerking zorgen voor eigentijdse luxe.

Kortom: een bijzondere woning op een unieke plek midden in Amsterdam.

Indeling
Het grachtenpand is een indrukwekkend met een ruime woonoppervlakte, verdeeld over een souterrain, begane grond en drie verdiepingen, met daarnaast een vrijstaand bijgebouw in de achtertuin verdeeld over twee woonlagen. De woning is hoogwaardig gerenoveerd met oog voor detail. In alle ruimtes zijn de orginele balkconstructies behouden, de muren strak afgewerkt, een lichte visgraat houten vloer gelegd en zijn de kasten op maat gemaakt – dit samen zorgt voor een verfijnde, harmonieuze uitstraling.

Souterrain
In het souterrain bevindt zich de woonkeuken, waar stijl, comfort en authenticiteit samenkomen. De haard in deze ruimte zorgt voor extra warmte en sfeer.

De ruime keuken is op maat gemaakt en uitgevoerd in natuurlijke tinten, met een kookeiland voorzien van een royaal werkblad in natuursteen en plaats voor meerdere zitplekken aan de bar. De keuken is uitgerust met hoogwaardige inbouwapparatuur, zoals een Bora inductiekookplaat met geïntegreerde afzuiging, vaatwasser, koel-vriescombinatie, Quooker, Gaggenau oven en combi-magnetron. De keuken is ontworpen met een op maat gemaakte houten kastenwand en biedt daarmee voldoende opbergruimte. De lichte eetruimte aan de voorzijde is een aangename plek voor lange diners en ontspannen momenten.

Zowel aan de voor- als achterzijde is er toegang naar buiten. De dubbele openslaande deuren aan de achterzijde zorgen voor een directe verbinding met de tuin.

Verder bevinden zich op deze verdieping een separaat toilet, een praktische bergkast met aansluiting voor wasmachine en droger en de trap naar de bel-etage. Dankzij de plafondhoogte van circa 2,46 meter en de slimme indeling voelt deze verdieping ruim, licht en uitnodigend aan – een ideale leefkeuken met karakter.

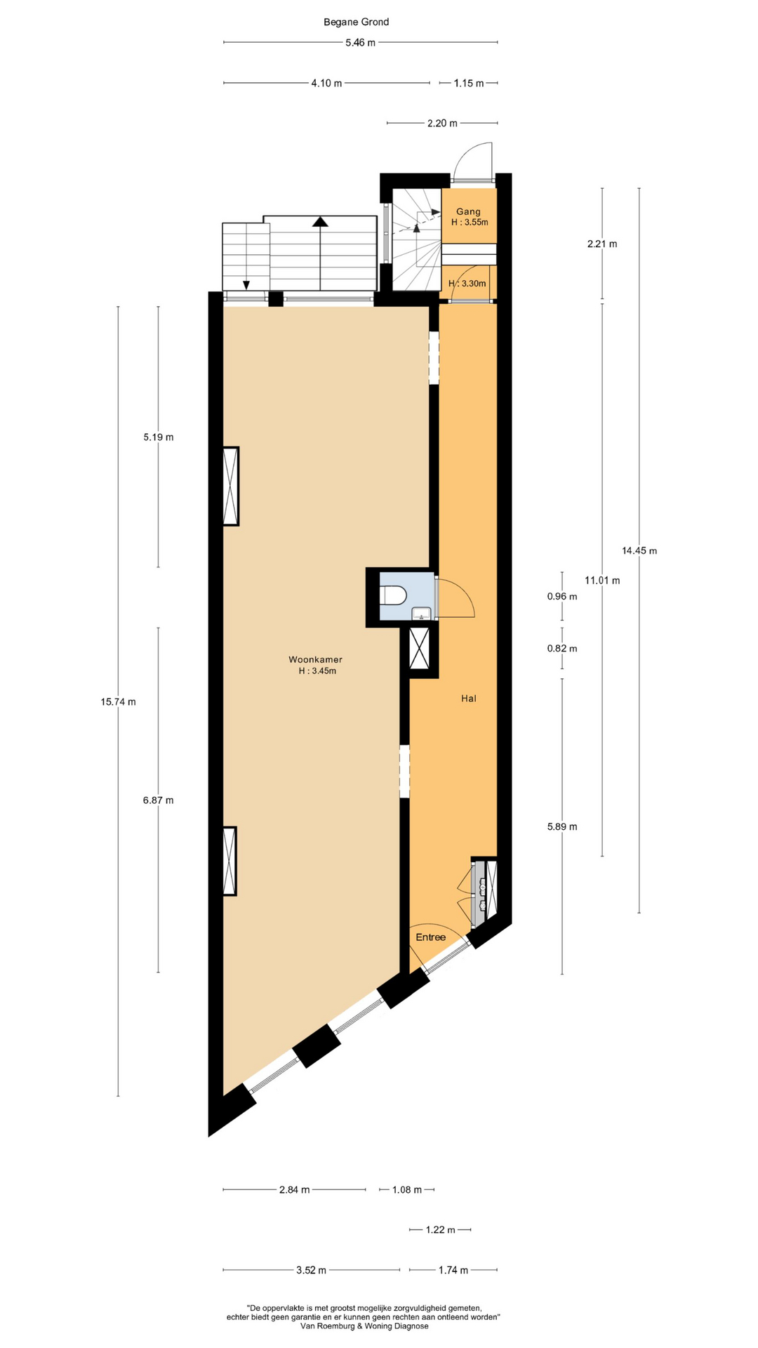
Begane grond
De bel-etage van het grachtenpand straalt de klassieke elegantie van de Amsterdamse grachtengordel uit, gecombineerd met een eigentijdse, serene sfeer. U komt de woning binnen in een brede marmeren hal, gelegen over de volledige lengte van de woning, waardoor u direct kunt doorlopen naar de tuin.

Via de hal bereikt u het woongedeelte van deze verdieping. Met een plafondhoogte van ruim 3,4 meter, originele plafondbalken, grote raampartijen en zicht op de Singel is dit een indrukwekkende ruimte waar allure en warmte op natuurlijke wijze samenkomen. De twee haarden op deze verdieping geven de ruimte een extra huiselijk gevoel.

Aan de voorzijde bevindt zich een zithoek met uitzicht op de gracht, met ruimte voor een royale eettafel. Aan de achterzijde biedt een tweede zitgedeelte een directe verbinding met het terras en de tuin. Door de hoge ramen en dubbele deuren valt het daglicht royaal naar binnen, waardoor de gehele verdieping een uitnodigende, open sfeer heeft.

De begane grond is daarmee niet alleen een representatieve leefruimte, maar ook een plek die uitnodigt tot ontspanning, samenzijn en genieten — met een schitterend uitzicht over het water aan de voorzijde en de rust van het groen aan de achterzijde.

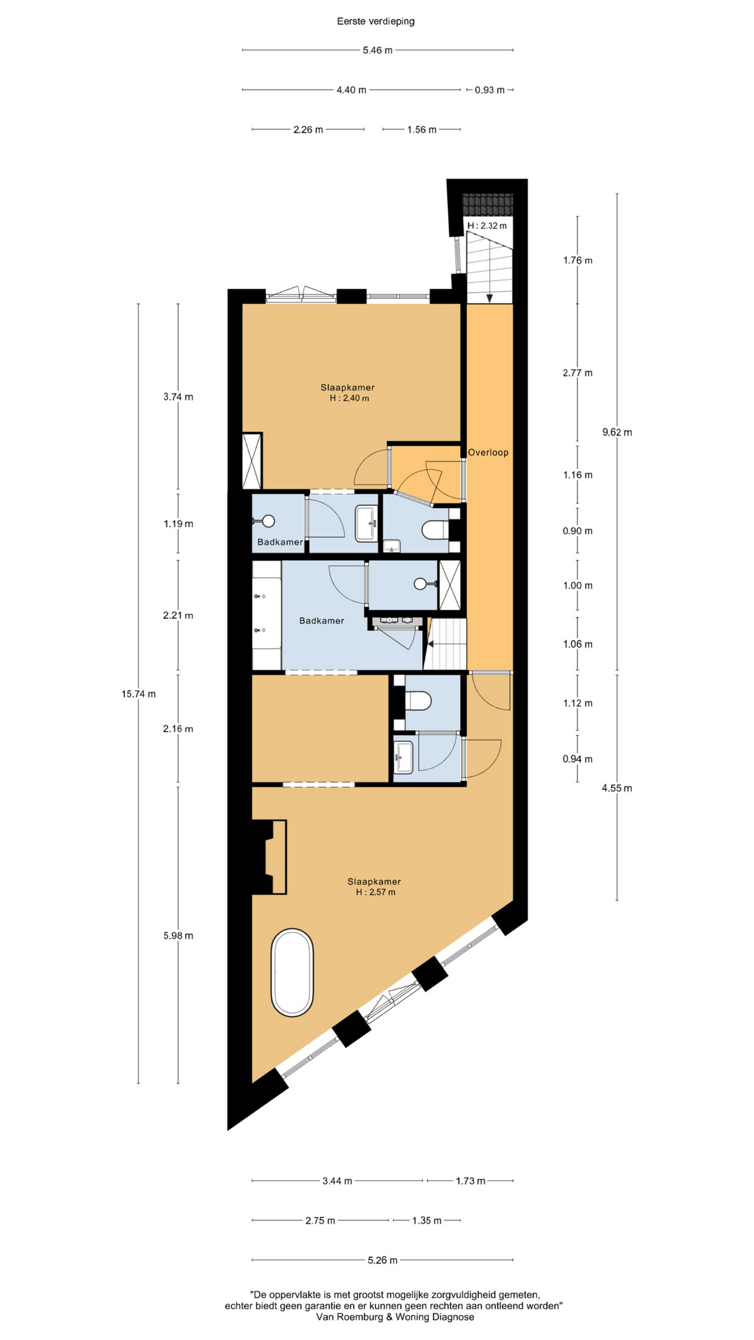
Eerste verdieping
Aan de voorzijde bevindt zich de hoofdslaapkamer met uitzicht over de Singel. De kamer heeft een warme, natuurlijke en lichte uitstraling dankzij de grote raampartijen. De vrijstaande badkuip bij het raam, het Franse balkon en de open haard zorgen voor een gevoel van luxe en intimiteit.

De inloopkast met maatwerkkasten verbindt de slaapkamer met de aangrenzende badkamer ensuite, waar rust en eenvoud de toon zetten. Hier vormen natuursteen, hout en zacht licht een harmonieus geheel. De badkamer is voorzien van een dubbele wastafel, inloopdouche en hoogwaardige afwerking in natuurlijke tinten.

Aan de achterzijde van deze verdieping bevindt zich een tweede slaapkamer, eveneens met eigen badkamer. Deze kamer kijkt uit over de binnentuinen, ideaal als logeerkamer, kinderkamer of thuiskantoor.

Tweede verdieping
Deze eveneens ruime en lichte verdieping heeft een rustgevende sfeer die perfect aansluit bij de rest van het huis. De verdieping beschikt over twee slaapkamers, twee badkamers en een inloopkast, aangrenzend aan de slaapkamer aan de voorzijde. Op de overloop bevindt zich een open trap naar de bovenste verdieping van de woning en het dakterras.

Derde verdieping
De bovenste verdieping is verdeeld in twee aparte ruimtes. De kamer aan de voorzijde is ideaal om als extra slaapkamer of werkkamer te dienen. Ook deze verdieping is licht van kleur en heeft een rustige sfeer. Aan de achterzijde bevindt zich een kamer met pantry inclusief wijnkoeler en toegang dakterras, waar u in alle rust van de zon kunt genieten onder het genot van een drankje met uitzicht over de historische daken van Amsterdam en de Dominicuskerk.

Op deze verdieping bevindt zich tevens de technische ruimte en is er een mogelijkheid voor wasmachine en droger aansluiting.

Tuin en bijgebouw
Aan de achterzijde van het pand bevindt zich een ruime, beschutte stadstuin — een oase van rust midden in het centrum van Amsterdam. De tuin is fraai aangelegd met natuurlijke materialen en groene accenten die perfect aansluiten bij de sfeer van het interieur.

Grenzend aan de tuin bevindt zich het vrijstaande atelier, een zelfstandig bijgebouw dat met hetzelfde oog voor detail is ontworpen en volledig in harmonie is met de stijl van het hoofdhuis.

Het atelier strekt zich uit over twee verdiepingen:
- Op de begane grond bevindt zich een open ruimte met hoge ramen en een warme houten vloer, ideaal als werkruimte, gastenverblijf of creatieve studio.
- Op de eerste verdieping een lichte slaapkamer met houten balken, grote raampartijen en een eigen badkamer met douche, wastafel en toilet.

De verfijnde afwerking, natuurlijke lichtinval en rustige uitstraling maken van het atelier een plek waar wonen, werken en ontspannen moeiteloos samenkomen. Dankzij de eigen entree is het bovendien uitstekend te gebruiken als gastenverblijf, kantoor aan huis of woonstudio.

Locatie en omgeving
Aan de statige Singel, één van de oudste grachten van Amsterdam en onderdeel van de beroemde Grachtengordel (UNESCO Werelderfgoed), bevindt zich dit indrukwekkende grachtenpand op nummer 29. Deze centrale ligging biedt het beste van twee werelden: de rust van het water voor de deur, met de bruisende binnenstad op slechts enkele passen afstand.

Vanuit het pand wandelt u in enkele minuten naar de Dam, het Koninklijk Paleis of de Negen Straatjes met hun karakteristieke boetieks, koffiezaken en restaurants. Ook het Centraal Station ligt op loopafstand, wat deze locatie bijzonder aantrekkelijk maakt voor wie reist of werkt buiten de stad.

De Singel zelf ademt historie — hier vormde ooit de middeleeuwse stadsmuur van Amsterdam de grens van de oude binnenstad. Vandaag de dag is het een van de meest geliefde grachten, met een mix van monumentale panden, groene bruggen en een levendige maar ingetogen sfeer. De directe omgeving kent bovendien een rijke variatie aan cultuur en gastronomie: van het Amsterdam Museum tot toonaangevende restaurants en charmante cafés aan het water.
Kortom: wonen aan de Singel betekent wonen in het hart van de hoofdstad, te midden van historie, elegantie en stedelijke levendigheid.

Bereikbaarheid
Amsterdam Centraal Station bevindt zich op slechts enkele minuten lopen, met directe nationale en internationale treinverbindingen. Ook de Noord/Zuidlijn en diverse tram- en busroutes liggen op korte afstand, waardoor verschillende bestemmingen in en buiten de stad eenvoudig te bereiken zijn.

Via de Prins Hendrikkade en Nieuwezijds Voorburgwal rijdt u als automobilist in circa 15 minuten naar de ringweg A10. Parkeren is mogelijk in de directe omgeving, zowel op straat (betaald) als in nabijgelegen parkeergarages. Het aanvragen van een parkeervergunning behoort tot de mogelijkheden, al geldt hiervoor doorgaans een wachttijd.

Bijzonderheden:
- Woonoppervlak van ca. 342 m² (gemeten conform NEN2580 meetinstructie);
- Woning verdeeld over 5 woonlagen;
- Funderingsherstel 2020;
- Gelegen op eigen grond;
- Bijgebouw/atelier vergund als woonruimte;
- Rijksmonumentaal pand;
- Rijksbeschermd stadsgezicht;
- UNESCO werelderfgoed;
- Oplevering in overleg.

Deze informatie is door ons met de nodige zorgvuldigheid samengesteld. Onzerzijds wordt echter geen enkele aansprakelijkheid aanvaard voor enige onvolledigheid, onjuistheid of anderszins, dan wel de gevolgen daarvan. Alle opgegeven maten en oppervlakten zijn indicatief. Koper heeft zijn eigen onderzoek plicht naar alle zaken die voor hem of haar van belang zijn. Met betrekking tot deze woning is de makelaar adviseur van verkoper. Wij adviseren u een deskundige (NVM-)makelaar in te schakelen die u begeleidt bij het aankoopproces. Indien u specifieke wensen heeft omtrent de woning, adviseren wij u deze tijdig kenbaar te maken aan uw aankopend makelaar en hiernaar zelfstandig onderzoek te (laten) doen. Indien u geen deskundige vertegenwoordiger inschakelt, acht u zich volgens de wet deskundige genoeg om alle zaken die van belang zijn te kunnen overzien. Van toepassing zijn de NVM voorwaarden.

Kenmerken

Overdracht
Vraagprijs
€ 4.100.000 k.k.
Status
onder bod
Aanvaarding
in overleg
Bouw
Soort woonhuis
Grachtenpand
Soort bouw
tussenwoning
Bouwjaar
1752
Energieklasse
A++
Soort dak
zadeldak
Slaapkamers
7
Badkamers
5
Oppervlakten en inhoud
Woonoppervlakte
342 m2
Overige inpandige ruimte
0 m2
Gebouwgebonden buitenruimte
8 m2
Inhoud
1294 m3
Perceeloppervlakte
172 m2
faciliteiten
Tv kabel
Frans balkon
Dakraam
Natuurlijke ventilatie
Aan water
In centrum
Vrij uitzicht
Baerz & Co Property Brochure

Brochure

Video’s

Heeren Makelaars

Stadionweg 75
1077 SE Amsterdam

info@heerenmakelaars.nl
+31 204702255

www.heerenmakelaars.nl

Informatie / bezichtigingsaanvraag

Sander Bovenkerk profile image
Sander Bovenkerk
Real estate agent

Een luxe woning kopen in Amsterdam

Amsterdam biedt een kosmopolitische levensstijl, gekenmerkt door erfgoed, verbondenheid en discrete luxe. Bewoners profiteren van een sterke internationale gemeenschap, hoogwaardige dienstverlening en een bruisende cultuur. De blijvende aantrekkingskracht van de stad schuilt in de combinatie van geschiedenis, verfijning en een vooruitstrevende geest.