Baerz & Co is een landelijk samenwerkingsverband van zorgvuldig geselecteerde boutique luxury makelaars. Samen vormen wij één netwerk, met één gedeeld aanbod. De woningen die u op onze website ziet, zijn afkomstig van alle aangesloten kantoren binnen Baerz & Co. Daardoor is niet ieder object rechtstreeks door ons kantoor in verkoop, maar door een gespecialiseerde collega binnen ons netwerk. Heeft u een woning gevonden die u aanspreekt en wilt u meer informatie? Dan brengen wij u graag persoonlijk in contact met de betreffende verkoopmakelaar, zodat u direct en zorgvuldig wordt begeleid.

DELFT
Oosteinde 191 - 2611 VD
Nederland

Joris Elbersen profile image
Joris Elbersen
Real Estate Agent
€1.250.000 k.k.
Woonoppervlakte
237m2
Perceeloppervlakte
113m2
Slaapkamers
7

Omschrijving

Aan een bekende Delftse gracht, mooi gelegen hoekpand met 7 ruime slaapkamers, een riante daktuin, een praktische, ruime fietsenberging en alle leuke voorzieningen van de gezellige binnenstad binnen handbereik.

Dit fraaie, unieke hoekpand biedt volop mogelijkheden !

De huidige eigenaren hebben direct naast hun huis in de voormalige Broerhuisstraat nummer 11, een goedlopende Bed&Breakfast met eigen voorzieningen, zoals een badkamer met vloerverwarming en een eigen ingang gerealiseerd. Door de huidige indeling biedt het huis goede mogelijkheden voor het voortzetten van de Bed&Breakfast, maar ook thuiswerken, aanleunwoning of praktijk aan huis behoort tot de mogelijkheden. Om de hoek zit je op de sfeervolle Beestenmarkt met gezellige horeca.

De renovatie van het huis is net afgerond waarbij het gehele huis onder handen werd genomen. Het huis is daardoor goed onderhouden en voorzien van modern comfort met een nieuwe keuken en luxe sanitair. Op het geheel gerenoveerde dak zijn zonnepanelen geïnstalleerd.

Van deze woning is een unieke woningwebsite beschikbaar. Download op Funda de brochure voor de link naar deze unieke website, waar je alle gegevens en nog meer informatie van deze woning kunt vinden.

De indeling is als volgt:

Begane grond
Bij binnenkomst word je direct verrast door de prachtige woonkeuken met haar indrukwekkende hoge glazen puien en een plafondhoogte van maar liefst 3,55 meter. In het plafond zit de originele gestucte sierlijst. De ruimte baadt in het licht en biedt volop plek voor een royale eettafel. De stijlvol afgewerkte keuken vormt het hart van de woning: een fijne ruimte met luxe inbouwapparatuur, waar je met plezier kookt en gasten ontvangt.

Aan weerszijden van de keuken bevinden zich twee sfeervolle leefruimtes: aan de ene kant een zitkamer en aan de andere kant een knusse woonkamer met een gezellige zithoek. Aangrenzend bevindt zich de inpandige studio, eveneens met een fraaie hoogte en openslaande deuren naar de straat. Deze ruimte is ingericht als slaapkamer met een eigen badkamer voorzien van inloopdouche, dubbele wastafel en toilet — ideaal als gastenverblijf, aanleunwoning, kantoor of praktijkruimte aan huis. Aan de achterzijde is een grote, praktische fietsenberging met vliering. Deze heeft toegang via de Broerhuisstraat. Vanuit de woonkamer leidt een rechte trap naar de eerste verdieping.
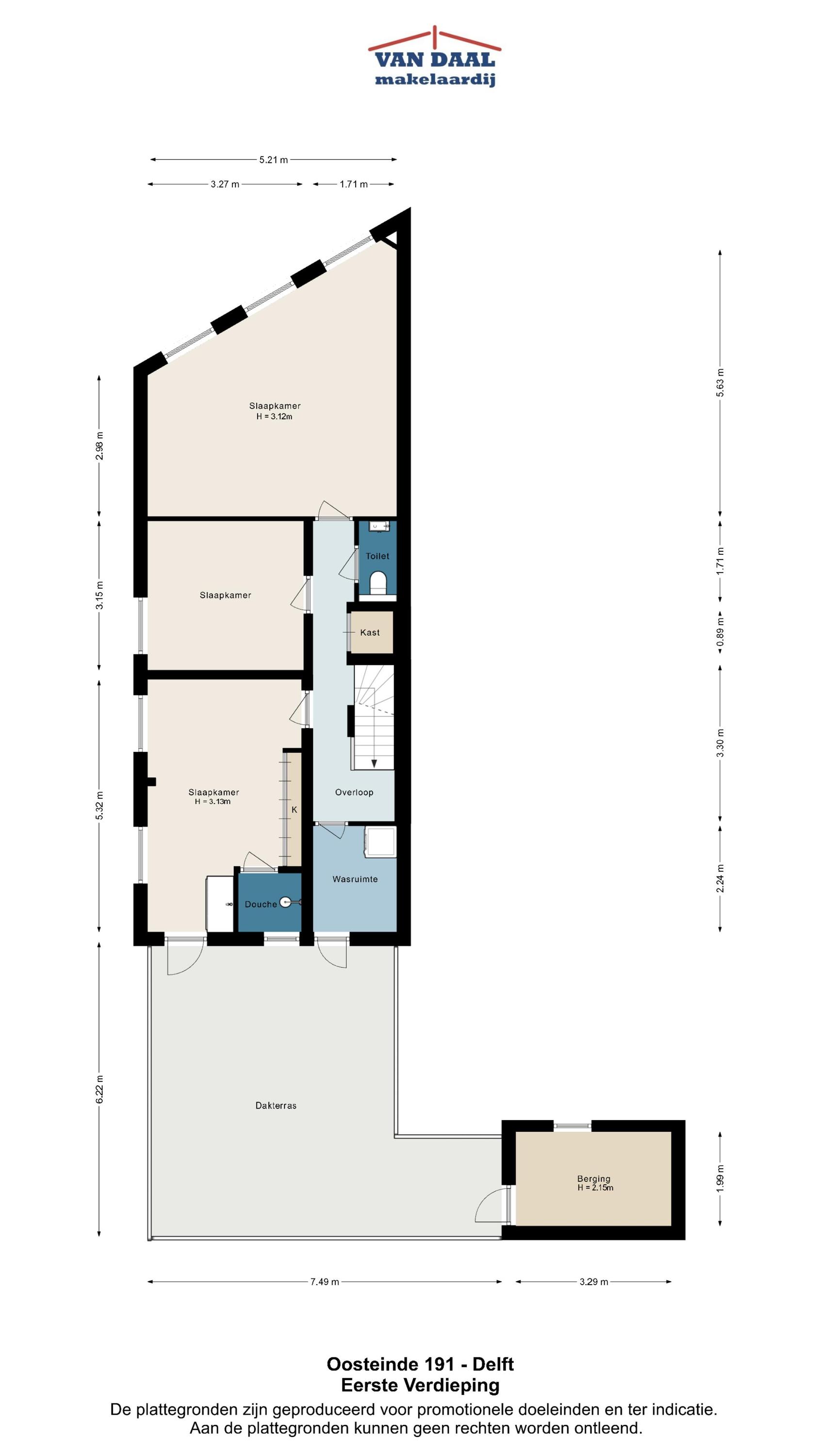
Eerste verdieping

De overloop biedt toegang tot een apart toilet met wastafeltje en een extra kastruimte. De royale, lichte slaapkamer aan de voorzijde heeft een hoog plafond en een prachtig uitzicht over de gracht. Daarnaast zijn er nog twee ruime slaapkamers, waarvan een voorzien van inloopdouche en wastafel. In alle slaapkamers sieren de glas-in-loodramen de vertrekken. Een aparte wasruimte geeft toegang tot de daktuin, een heerlijke, beschutte plek met optimale zonligging. Van ’s ochtends vroeg tot laat in de avond geniet je hier van volop zon, privacy en een sfeervolle, groene setting. Op het terras bevindt zich bovendien een ruime houten berging.

Tweede verdieping

De tweede etage is verrassend ruim. Een lange gang met vaste kasten, voorzien van karakteristieke antieke deuren, biedt toegang tot nog 3 slaapkamers. Aan de voorzijde ligt een ruime kamer met dakraam, dakkapel en open kap waarin de originele balkenconstructie zichtbaar is. De tweede slaapkamer heeft een hoge dakkapel met een authentieke takelbalk, terwijl aan de achterzijde nog een fijne slaapkamer ligt met dakkapel en dakvenster, met uitzicht op de kerktorens van Delft. De luxe badkamer is compleet uitgevoerd met ligbad, inloopdouche, vierde toilet, design wastafelmeubel en handdoekenradiator.

Bijzonderheden/kenmerken:
- Goede staat van onderhoud;
- Oorspronkelijke bouwjaar 1898;
- Perceel 113 m2 (eigen grond);
- Elektra vernieuwd;
- Schilderwerk buiten 2023;
- Voorzien van een compleet gerenoveerd dak inclusief nieuwe zinken goten;
- CV installatie aanwezig met een CW6 CV combiketel uit 2022;
- Gedeeltelijk dubbel glas;
- Beschermd stadsgezicht;
- Riante daktuin.

Interesse in dit huis? Schakel dan direct uw eigen NVM-aankoopmakelaar in. Uw lokale NVM-aankoopmakelaar komt op voor uw belangen en bespaart u tijd, geld en zorgen.

Kenmerken

Overdracht
Vraagprijs
€ 1.250.000 k.k.
Status
beschikbaar
Aanvaarding
in overleg
Bouw
Soort woonhuis
Herenhuis
Soort bouw
hoekwoning
Bouwjaar
1898
Energieklasse
B
Soort dak
zadeldak
Slaapkamers
7
Badkamers
3
Oppervlakten en inhoud
Woonoppervlakte
237 m2
Overige inpandige ruimte
0 m2
Gebouwgebonden buitenruimte
38 m2
Externe bergruimte
14 m2
Inhoud
972 m3
Perceeloppervlakte
113 m2
faciliteiten
Aan rustige weg
In centrum
Open ligging
Baerz & Co Property Brochure

Brochure

Video’s

Plattegronden

Van de Zande Makelaardij - Waalwijk

Grotestraat 344
5142 CD Waalwijk

joris@zande.nl
+31 416 333059

www.zande.nl

Informatie / bezichtigingsaanvraag

Joris Elbersen profile image
Joris Elbersen
Real Estate Agent

Een luxe woning kopen in Delft

Delft staat bekend om haar artistieke erfenis, verfijnde levensstijl en vooruitstrevend stedelijk karakter. De gemeenschap trekt veeleisende bewoners en investeerders aan, biedt maatwerk wonen, toegang tot topservices en internationale connecties.