Baerz & Co is een landelijk samenwerkingsverband van zorgvuldig geselecteerde boutique luxury makelaars. Samen vormen wij één netwerk, met één gedeeld aanbod. De woningen die u op onze website ziet, zijn afkomstig van alle aangesloten kantoren binnen Baerz & Co. Daardoor is niet ieder object rechtstreeks door ons kantoor in verkoop, maar door een gespecialiseerde collega binnen ons netwerk. Heeft u een woning gevonden die u aanspreekt en wilt u meer informatie? Dan brengen wij u graag persoonlijk in contact met de betreffende verkoopmakelaar, zodat u direct en zorgvuldig wordt begeleid.

LEIDEN
Galgewater 10 - 2311 VZ
Nederland

Joris Elbersen profile image
Joris Elbersen
Real Estate Agent
€1.500.000 k.k.
Woonoppervlakte
180m2
Perceeloppervlakte
208m2
Slaapkamers
3

Omschrijving

Galgewater 10 én 11!

Prachtig grachtenpand met bijzondere tuin en indien gewenst een eigen appartement!

Aan een rustige, autoluwe kade midden in de historische Leidse binnenstad staat dit karakteristieke grachtenpand een woning met uitstraling, geschiedenis en een uniek gevoel van ruimte. Niet alleen de Romeinen stonden hier al rond het begin van de jaartelling, maar op nog geen 100 meter afstand stond Rembrandt's geboortehuis.

Op de plek waar eeuwen geleden de stadsmuren de stad beschermden, kijk je nu uit over de haven met haar historische schepen en monumentale panden. Het huis draagt nog altijd de charme van de vroege 20e en de 17e eeuw, met royale plafondhoogtes en een overvloed aan natuurlijk licht dat door de ramen naar binnen stroomt.

Een buitenkans in de binnenstad is de uitzonderlijk brede, beschutte achtertuin op het zuiden: circa zeven meter diep en maar liefst veertien meter breed. Een ware oase midden in de stad. Perfect voor wie droomt van groen, privacy én ruimte. De tuin beschikt over een twee bergingen en achterom aan twee zijden, een combinatie die maar zelden te vinden is binnen de singels. Binnen zorgen strak gestuukte wanden, oude steentjes en eikenhouten vloerdelen voor een stijlvolle en warme afwerking die past bij de historische ambiance.

Daarnaast beschikt het pand over een zelfstandig appartement, wat dit grachtenpand extra bijzonder en veelzijdig maakt: ideaal voor gasten, werken aan huis of verhuur.

Leiden Centraal en de markt liggen op korte loopafstand. Fiets je liever? Dan bereik je in enkele minuten alle hoeken van de binnenstad én daarbuiten. En wie toch de auto pakt, kan voor de deur parkeren en rijdt binnen enkele minuten de A4 en A44 op, richting de rest van de Randstad.
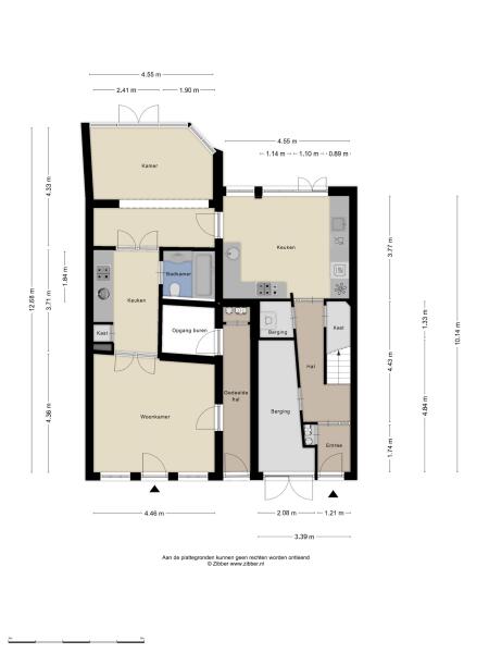
INDELING

Begane grond (nr. 11)
Entree met meterkast. Hal met wasmachineopstelling, trap naar de 1e etage en binnendoor naar de berging en de keuken. Ruime woonkeuken met inbouwapparatuur en openslaande deuren naar de tuin. Doorgang binnendoor naar nr. 10.

1e etage
Overloop met trap naar de 2e etage. Voorkamer met hoge balkenplafonds en prachtig uitzicht over het Galgewater. Achterkamer met openslaande deuren naar het dakterras.

2e etage
Overloop. Ruime slaapkamers met hoge balkenplafonds aan voor- en achterzijde. Moderne badkamer met douche, wc en wastafel.

Bergvliering

Tuin
Achtertuin met veel privacy, schuur, fietsenberging en achterom aan twee zijden.

Appartement (nr. 10)
Kamer voorzijde met authentieke details en tuinkamer met openslaande deuren en binnendoor naar nr. 11. Keuken met inbouwapparatuur en badkamer met ligbad. wastafel en wc.
BIJZONDERHEDEN

- Beschermd stadsgezicht
- Rijksmonument (nr. 10)
- In 2001 onder architectuur gerestaureerd incl. moderne technische installaties en warmte-isolatie waar mogelijk
- Recent (2025) geheel geschilderd aan buitenzijde in historische kleuren
- Niet-bewonersclausule van toepassing
- Ouderdomsclausule van toepassing
- Notaris voor het transport: TeekensKarstens te Leiden

Kenmerken

Overdracht
Vraagprijs
€ 1.500.000 k.k.
Status
beschikbaar
Aanvaarding
in overleg
Bouw
Soort woonhuis
Grachtenpand
Soort bouw
tussenwoning
Bouwjaar
1650
Soort dak
samengesteld dak
Slaapkamers
3
Badkamers
2
Oppervlakten en inhoud
Woonoppervlakte
180 m2
Overige inpandige ruimte
0 m2
Gebouwgebonden buitenruimte
6 m2
Externe bergruimte
12 m2
Inhoud
637 m3
Perceeloppervlakte
208 m2
faciliteiten
Mechanische ventilatie
Rookkanaal
Aan rustige weg
In centrum
In woonwijk
Vrij uitzicht
Beschutte ligging
Baerz & Co Property Brochure

Brochure

Video’s

Plattegronden

Van de Zande Makelaardij - Waalwijk

Grotestraat 344
5142 CD Waalwijk

joris@zande.nl
+31 416 333059

www.zande.nl

Informatie / bezichtigingsaanvraag

Joris Elbersen profile image
Joris Elbersen
Real Estate Agent

Een luxe woning kopen in Leiden

Leiden biedt uitzonderlijk erfgoed, dynamische cultuur en een gericht dienstverleningsniveau, waardoor het een aantrekkelijke omgeving wordt voor internationale bewoners. Met verfijnde woningen, een vitale academische traditie en discrete luxe biedt deze grachtenstad een geraffineerde levensstijl voor een internationale gemeenschap.